HAUS BIRCHSTRASSE, HETTLINGEN
| Auftraggeber | privat |
|---|---|
| Jahr | 2018-2019 |
| Kategorie | Sanierung |
| Nutzung | Wohnen |
| Auftrag | Direktauftrag |
| Leistung | Gesamtleistung |
| ARGE | Diener Marc Architektur GmbH |
| Kosten | 0.4 Mio. |
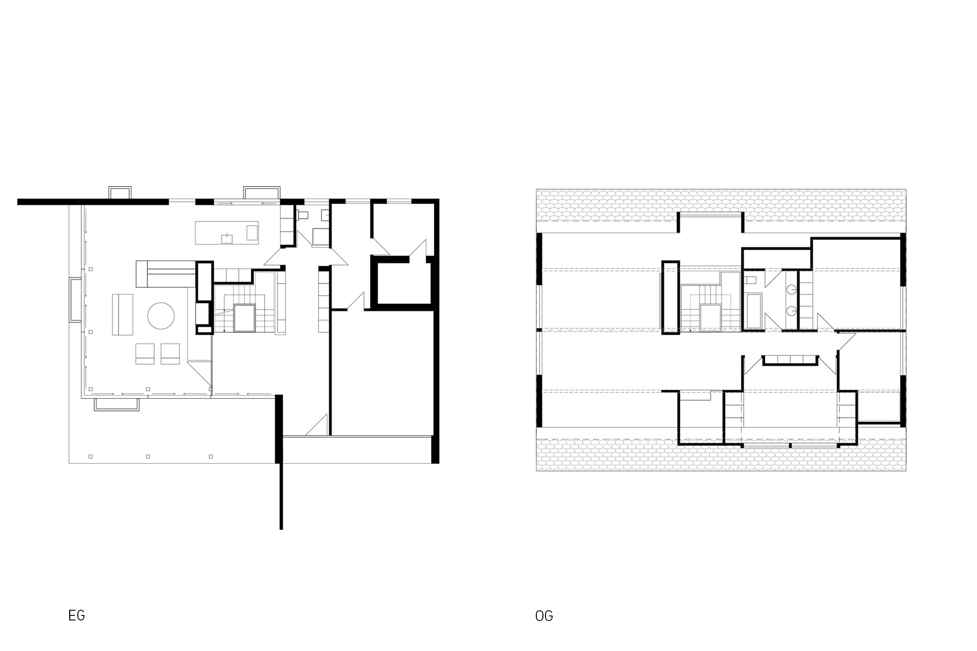
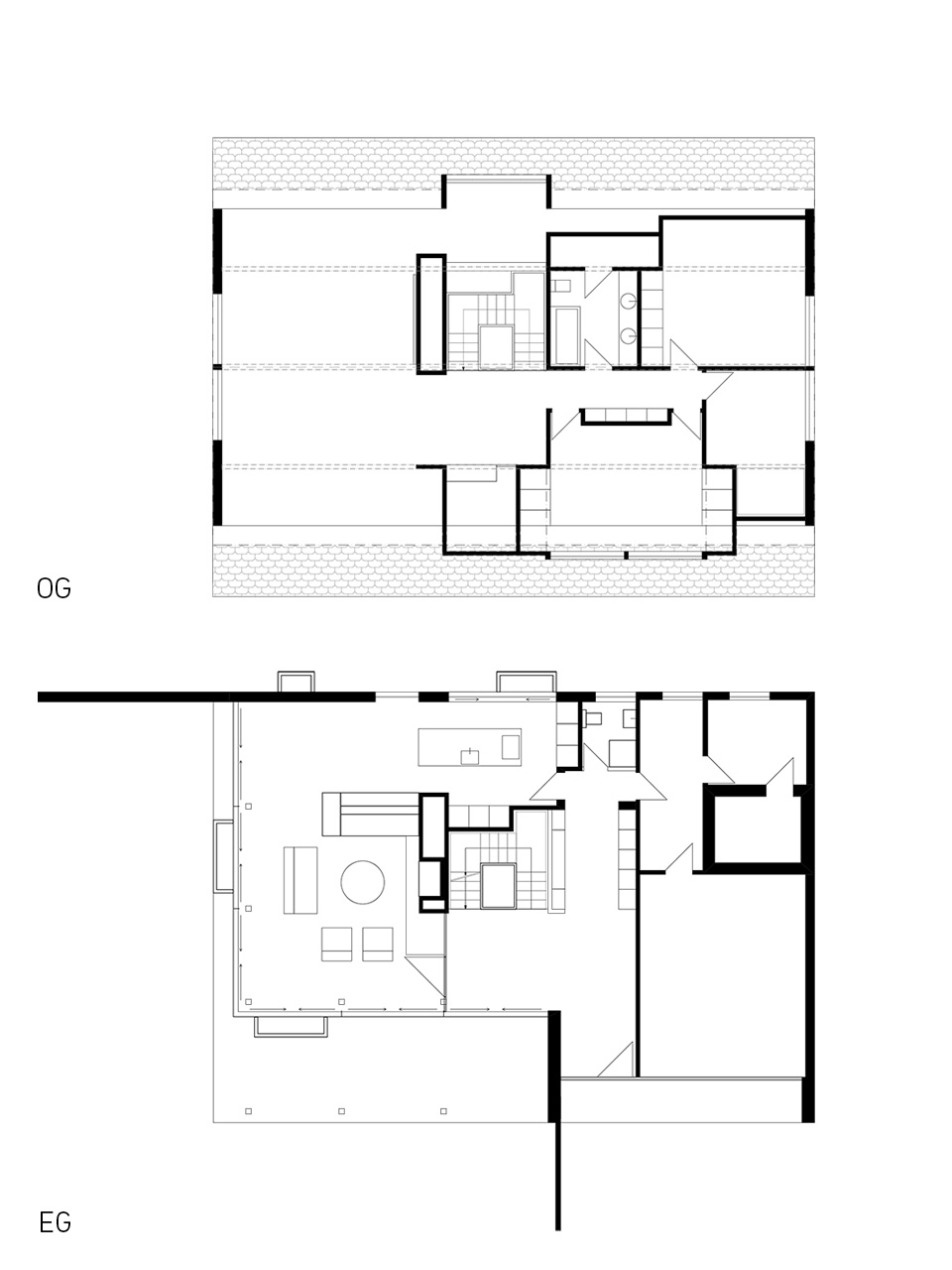
Das Einfamilienhaus aus den 60er Jahren, entworfen von Architekt Robert Rothen, erinnert stark an die kalifornischen Villenbauten jener Zeit. Prägend sind der offene Grundriss, die grosszügige Fensterfront zum Garten und die konsequente Reduktion auf wenige Materialien. In den Innenräumen werden Klinkerstein, Beton und Furnierholz verwendet. Im Zug der Sanierung soll die ursprüngliche Charakteristik des Hauses wiederhergestellt und neu Interpretiert werden. Küche und Bad wurden nach heutigem Standard neu gebaut. Eine zusätzliche Dachgaube nach Norden erweitert den Dachraum. Im Entree und im Schlafzimmer fügen sich neue Schrankeinbauten, teils nach den Originalplänen, ein. Unpassende, im Lauf der Zeit vorgenommene Einbauten werden entfernt. Die später eingebaute Stahltreppe wird mit Massivholzstufen aufgewertet.
Das Einfamilienhaus aus den 60er Jahren, entworfen von Architekt Robert Rothen, erinnert stark an die kalifornischen Villenbauten jener Zeit. Prägend sind der offene Grundriss, die grosszügige Fensterfront zum Garten und die konsequente Reduktion auf wenige Materialien. In den Innenräumen werden Klinkerstein, Beton und Furnierholz verwendet. Im Zug der Sanierung soll die ursprüngliche Charakteristik des Hauses wiederhergestellt und neu Interpretiert werden. Küche und Bad wurden nach heutigem Standard neu gebaut. Eine zusätzliche Dachgaube nach Norden erweitert den Dachraum. Im Entree und im Schlafzimmer fügen sich neue Schrankeinbauten, teils nach den Originalplänen, ein. Unpassende, im Lauf der Zeit vorgenommene Einbauten werden entfernt. Die später eingebaute Stahltreppe wird mit Massivholzstufen aufgewertet.











