HAUS IN DER TEPPICHSIEDLUNG, WINTERTHUR
| Auftraggeber | privat |
|---|---|
| Jahr | 2020-2023 |
| Kategorie | Sanierung |
| Nutzung | Wohnen |
| Inventar | Kantonaler Denkmalschutz |
| Auftrag | Direktauftrag |
| Leistung | Planung, gestalterische Leitung |
| Kosten | 0.35 Mio. |
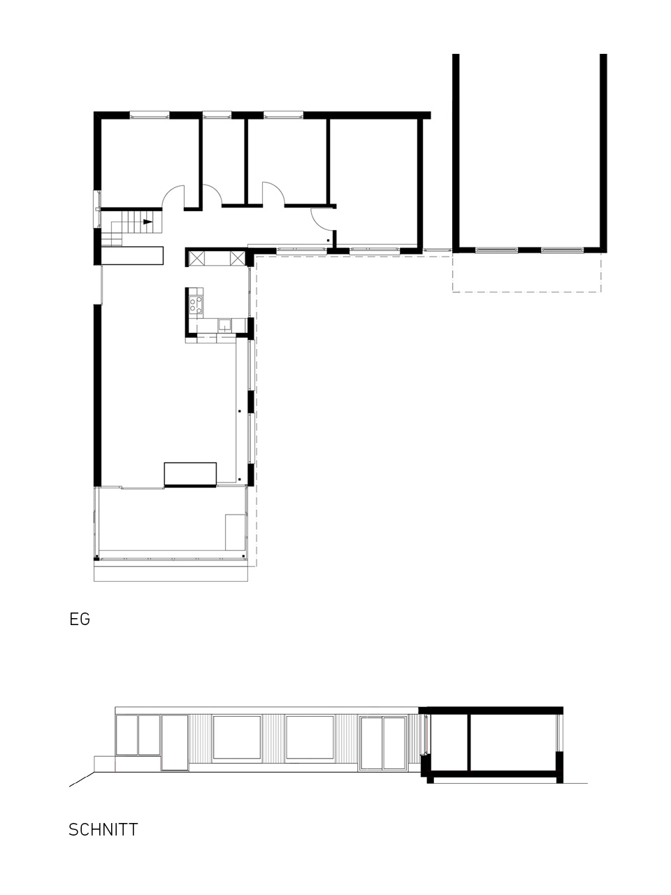
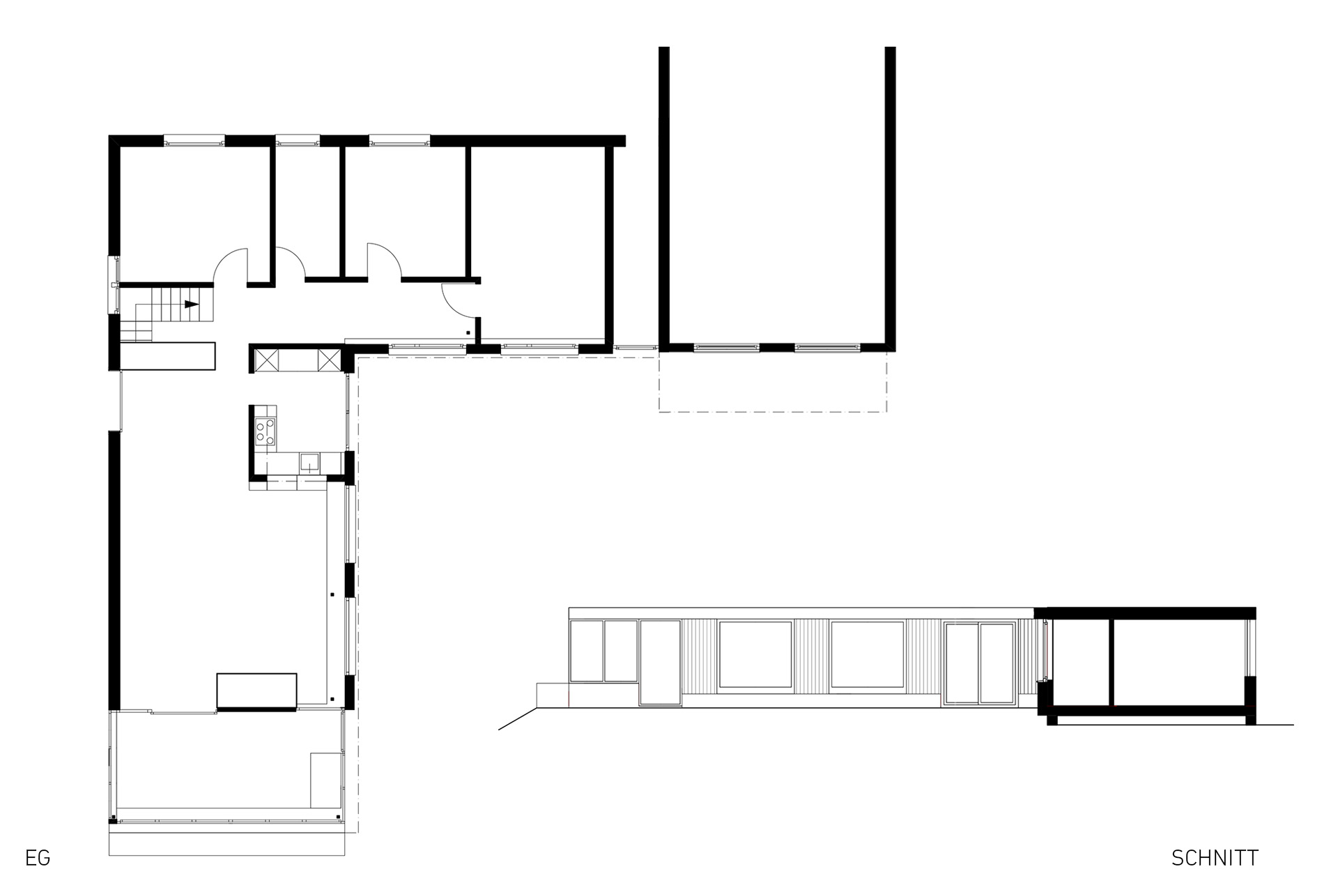
Das Haus wurde als Teil der Teppichsiedlung von Architekt Ulrich Baumgartner Anfang der 1960er Jahre erbaut. Die Haupträume liegen alle im Erdgeschoss des Pavillonbaus. Die äussere Fassade aus Sichtbeton ist erhalten und intakt. Die innere, vorgehängte Fassade ist nicht mehr original und baulich sowie energetisch in einem erbärmlichen Zustand. Sie wird ersetzt durch eine selbsttragende Holzelementfassade, die allen Anforderungen nach einem modernen Bauteil entspricht. Dabei wird der ursprüngliche Gestaltungsrhythmus mit Öffnungen und festen Teilen, hohen und niedrigen Brüstungen frei interpretiert. Eine neuer Ausgang aus der Küche wird mittels Schiebetüre integriert und die Wintergartenverglasung ersetzt. Die Materialisierung mit roter Holzschalung, weissen Fenstern und Alulamellenstoren bleibt nahe an der ursprünglichen Gestaltung. Im Innern werden Fensterbänke wiederhergestellt und eine neue Küche eingebaut.
Das Haus wurde als Teil der Teppichsiedlung von Architekt Ulrich Baumgartner Anfang der 1960er Jahre erbaut. Die Haupträume liegen alle im Erdgeschoss des Pavillonbaus. Die äussere Fassade aus Sichtbeton ist erhalten und intakt. Die innere, vorgehängte Fassade ist nicht mehr original und baulich sowie energetisch in einem erbärmlichen Zustand. Sie wird ersetzt durch eine selbsttragende Holzelementfassade, die allen Anforderungen nach einem modernen Bauteil entspricht. Dabei wird der ursprüngliche Gestaltungsrhythmus mit Öffnungen und festen Teilen, hohen und niedrigen Brüstungen frei interpretiert. Eine neuer Ausgang aus der Küche wird mittels Schiebetüre integriert und die Wintergartenverglasung ersetzt. Die Materialisierung mit roter Holzschalung, weissen Fenstern und Alulamellenstoren bleibt nahe an der ursprünglichen Gestaltung. Im Innern werden Fensterbänke wiederhergestellt und eine neue Küche eingebaut.











